Council Meetings

Agenda - April 2006 County Council Meeting

Back to Meetings
Date:
10/04/2006 00:00
Location:
Council Chamber
Standing Orders:

Headed Items

H-I (1)
Submitted by:
Community Directorate
Responsibility:
Community Directorate

CONFIRMATION AND RE-AFFIRMATION OF MINUTES

a) Minutes of Special Meeting of South Dublin County Council, 9th March 2006

b) Minutes of Meeting of South Dublin County Council, 13th March 2006

(all circulated herewith)

H-I (2)
Submitted by:
Planning Not is use
Responsibility:
Planning Not is use

Proposed Material Contravention of the South Dublin County Council Development Plan 2004-2010 – Register Reference No. SD05A/0806, for
(1)
Ceding approximately 3 hectares fronting onto Kiltipper Road to South Dublin County Council for future development of a public park; 
(2) a residential development of forty units in six blocks, varying in height from one to three storeys, fronting onto Bohernabreena Road:  two of these blocks will also contain basement level storage and parking for a total of 42 cars;  further surface level parking will be provided for 20 cars; 
(3) a two storey building in the existing car park of the Old Mill Pub fronting onto Old Bawn Road - it is to contain two restaurants at ground floor level (500 sq.m.), with terraces facing the new park and office space at first floor level (533 sq.m.); 
(4) the replacement of existing parking spaces lost to the new building to the southwest side of the Old Mill Pub.
At a site southwest of Old Mill Pub, Old Bawn, Tallaght, Dublin 24 for Contorus Ltd.

(circulated herewith)

H-I (3)
Submitted by:
Community Directorate
Responsibility:
Roads Department, Housing Administration, Planning Not is use

REPORT OF THE AREA COMMITTEES

a) Terenure/Rathfarnham Area Committee (1) - 7th March2006

Dealing with Roads, Planning, Development and Corporate Services

(no report)

b) Terenure/Rathfarnham Area Committee (2) - 7th March 2006

Dealing with Community (1 report - Grants), Parks, Environment and Housing

(circulated herewith)

c) Terenure/Rathfarnham Area Committee (1) - 4th April 2006

Dealing with Roads, Planning, Development and Corporate Services (1 report - Change of Street Name)

(circulated herewith)

d) Tallaght Area Committee (1) - 20th March 2006

Dealing with Environment, Parks, Community (1 report - Grants) and Housing

(circulated herewith)

e) Tallaght Area Committee (2) - 27th March 2006

Dealing with Roads , Planning (1 report - Tallaght Town Centre Masterplan) , Development and  Corporate Services (1 Report - Childrens Hospital)

(circulated herewith)

f) Lucan/Clondalkin Area Commmittee(1) - 21st March 2006

Dealing with Development, Planning, Corporate Services and Roads

(no report)

g) Lucan /Clondalkin Area Committee (2) - 28th March 2006

Dealing with Environment, Parks, Community (1 Report - Grants)  and Housing

(circulated herewith)

H-I (4)
Submitted by:
Community Directorate
Responsibility:
Community Directorate

STANDING COMMITTEES - ORGANISATION, PROCEDURE AND FINANCE COMMITTEE, 30TH MARCH 2006

a) Calendar of Meeting Dates

b) Filling of Vacancies on Strategic Policy Committees and other Bodies following resignation of Councillor C. Tyndall

c) Revised Allowance for Mayor and Deputy Mayor

(all circulated herewith)

H-I (5)
Submitted by:
Community Directorate
Responsibility:

STRATEGIC POLICY COMMITTEES

(no report)

H-I (6)
Submitted by:
Community Directorate
Responsibility:

REPORTS REQUESTED BY AREA COMMITTEES

(no report)

Questions

Qu (1)
Submitted by:
Councillor M. Corr
Responsibility:
Maria O'Neill
To ask the Manager what progress has South Dublin County Council made in developing a targeted approach to the issue of illegally kept horses and will he make a statement on the matter?
Qu (2)
Submitted by:
Councillor M. Corr
Responsibility:
Breda Fogarty
To ask the Manager how much has been received by South Dublin County Council in income from the Private Residential Tenancies Board to date and are these funds being ring-fenced to provide funds to inspect dwellings for suitability?
Qu (3)
Submitted by:
Councillor M. Corr
Responsibility:
Breda Fogarty
To ask the Manager to state the number of private rented dwellings in the County and how many inspections have taken place since funding for these inspections has been received from the Private Residential Tenancies Board?
Qu (4)
Submitted by:
Councillor M. Corr
Responsibility:
Mary O'Shaughnessy
To ask the Manager how many housing units that are classified as "Social" as opposed to "Affordable" have been procured by this Council under Part V of the Planning and Development Act 2000 to date?
Qu (5)
Submitted by:
Councillor M. Corr
Responsibility:
Paul Fleming, Martin Judge
To ask the Manager to state for what period of time is it permissable under both planning/environmental regulations, for an estate/letting agent to place advertisement placards outside a property or on the boundary walls/fence of an estate and will he make a statement on the matter?
Qu (6)
Submitted by:
Councillor C. King
Responsibility:
Paul Fleming
To ask the Manager, what efforts are being made to reimburse pensioners within the County who are entitled to a bin charge waiver and who have had to pay for bin tags themselves from January to March as a result of forms being either not filled in or being filled in incorrectly, taking into consideration the question whether these forms were necessary at all considering the extremely low chance of a pensioners financial circumstances changing from one year to another and can she make a statement on the matter?
Qu (7)
Submitted by:
Councillor C. King
Responsibility:
Hugh Pierce

To ask the Manager, (A)how many house fires have taken place in the past two years in Council owned houses or apartments as a result of faulty wiring or wiring related issues,   (B) has there been any investigation by the Council to determine if there are any patterns emerging in this regard in terms of for example contractors carrying out works on certain houses previous to a fire and  (C) if an investigation hasn't taken place will the Manager undertake to arrange for an investigation to take place to ensure that this Council is doing everything in it's power to prevent such fires taking place in the future?

Qu (8)
Submitted by:
Fintan McCarthy
Responsibility:
Paddy McNamara

To ask the Manager to report upon what steps have been taken following my previous request to put in place the appropriate accounting structure to ensure that all Development levies that are receipted in the Council’s Planning Department on a Countywide basis are also recorded in such a way as to enable a breakdown, electoral area by electoral area, to be provided to Councillors? 

Qu (9)
Submitted by:
Fintan McCarthy
Responsibility:
Maria O'Neill

To ask the Manager to triple the number of air pollution monitoring stations within the county in light of the evidence of a massive increase in air pollution caused by traffic nationwide over the past number of years? 

Qu (10)
Submitted by:
Fintan McCarthy
Responsibility:
Gerry Fitzgibbon

To ask the Manager to report upon what progress has been made in the review of the Council’s Water Leisure Strategy brought about in light of the fact that most of the funding will have to be provided from Council resources? 

Qu (11)
Submitted by:
Fintan McCarthy
Responsibility:
Muiris O'Keeffe

To ask the Manager what traffic management plans will be put in place countywide for the duration of the Ryder Cup tournament next September? 

Qu (12)
Submitted by:
Fintan McCarthy
Responsibility:
Michael Kenny

To ask the Manager to report upon what input the Council would have in any attempts to increase the usage of any airfield within the county and to make enquiries to this effect with the Irish Aviation Authority? 

Qu (13)
Submitted by:
Fintan McCarthy
Responsibility:
Jim Kilgarriff

To ask the Manager to report upon the desirability of providing cycle path facilities within all parks within the County? 

Qu (14)
Submitted by:
Councillor T. McDermott
Responsibility:
Paddy McNamara
To ask the Manager to outline the terms and conditions contained in the standard "Taking-in Charge" contract that the Council uses with developers, how often it changes and his general satisfaction with it.  Would the Manager also indicate the frequency of litigation relating to "Taking-in Charge" processes in the last three years and would he make a statement on the matter?
Qu (15)
Submitted by:
Councillor J. Neville
Responsibility:
Paul Fleming
To ask the Manager to outline how many sold (€3 & €6 bin tags) are currently unused, the rationale behind not allowing purchasers of the above-mentioned bin tags from using them, why  purchasers of said bin tags cannot return them to the retail outlet where they were purchased and will the Manager note that the opening hours of the Environment Department are not convenient for a lot of people in 9-5 employment and will the Manager make a statement on the issues raised within this question?
Qu (16)
Submitted by:
Councillor J. Neville
Responsibility:
Paul Fleming
To ask the Manager to note the most recent survey by An Taisce for (Ibal) in which a number of areas within the administrative area of South Dublin County Council were noted as falling within the categories of moderately littered, a serious litter problem &  a litter blackspot and will the Manager outline what concerted approach will be taken by this local authority and will the Manager please note the progress that Fingal County Council have made on this issue and will the Manager make a statement on the issues raised within this question?
Qu (17)
Submitted by:
Councillor J. Neville
Responsibility:
Philip Murphy
To ask the Manager if there has been any contact between South Dublin County Council and " Habitat for Humanity" in view of  their recent  successful completion of four new homes in Ballymun and if not , could contact be made with " Habitat for Humanity" and Dublin City Council  with a view to replicating their successful partnership and will the Manager make a statement on the matter?
Qu (18)
Submitted by:
Councillor J. Neville
Responsibility:
Paul Fleming

To ask the Manager to outline in detail:

(1) The changes in the eligibility criteria for applicants for bin waivers.

(2) The percentage of successful applicants and the total number of applicants.

(3) The number of bin waivers issued in 2006 in comparison to 2005.

(4) What percentage is this in regard to the total number of households using bin tags

and will the Manager make a statement on the issues raised within this question?

Qu (19)
Submitted by:
Councillor J. Neville
Responsibility:
Billy Coman

To ask the Manager for a detailed update on the formulation and subsequent implementation of a "play policy" for the County and will the Manager make a statement on the matter?

Qu (20)
Submitted by:
Councillor J. Neville
Responsibility:
Billy Coman
To ask the Manager to outline in detail the up to date situation on the proposed "Farmers Market" with specific reference to a time-frame for the opening of the Market and the location of the Market and will the Manager make a statement on the matter?
Qu (21)
Submitted by:
Councillor J. Neville
Responsibility:
Mary O'Shaughnessy

To ask the Manager to outline in detail the number of Affordable/Social housing  units that have come on stream  in this County since the Planning & Development Act 2000 (Part 5) and will the Manager outline the number of such units that are expected to come on stream as a result of successful planning applications to date and will the Manager break this data down on a L.E.A basis and will the Manager make a statement on the matter?

Qu (22)
Submitted by:
Councillor J. Neville
Responsibility:
Paul Fleming

To ask the Manager for an update on the number of incidences of illegal dumping that occurred in this County in the first quarter of this year, the number of prosecutions pending and pursued and will the Manager make a statement on the matter?

Headed Items

H-I (7)
Submitted by:
Community Directorate
Responsibility:
Roads Department

DECLARATION OF ROADS TO BE PUBLIC ROADS

(no report)

H-I (8)
Submitted by:
Community Directorate
Responsibility:
Housing Administration, Development, Econ. & Transport Planning Dept.

PROPOSED DISPOSAL OF PROPERTIES / SITES

a) Proposed Disposal of Affordable Housing (3 units)

b) Small Builders Scheme - Proposed Disposal of Fee Simple Interest at 46 Oakwood Grove, Clondalkin, Dublin 22.

c) Proposed disposal of area of land adjacent to 125 Palmerstown Woods, Clondalkin, Dublin 22 to Joseph and Winifred Cashen.

(all circulated herewith)

H-I (9)
Submitted by:
Jim Kilgarriff
Responsibility:
Parks Department

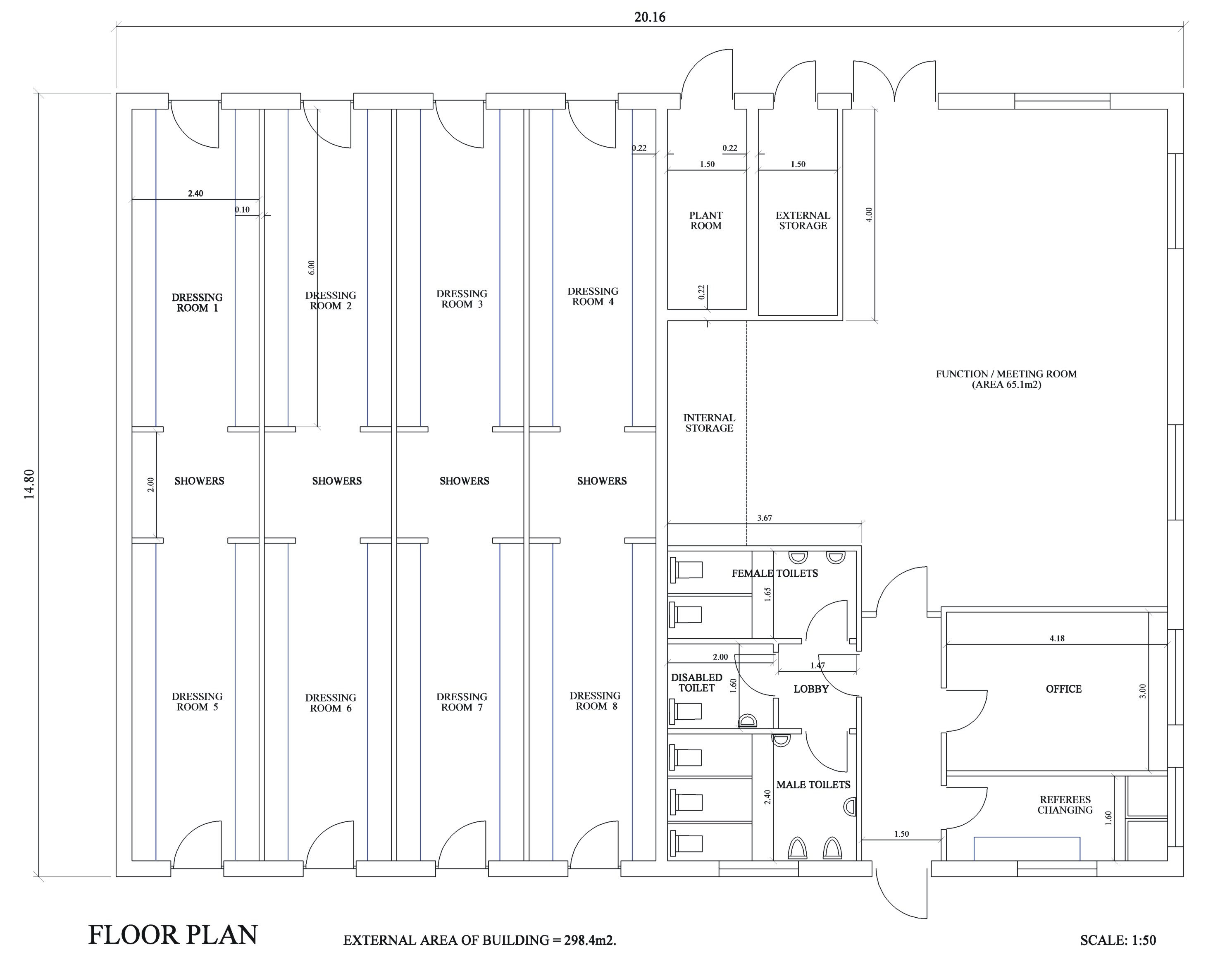
Report on Public Consultation Process under Part 8 Planning and Development Regulations 2001 - Tymon Park Sports Pavilion

(circulated herewith)

H-I (10)
Submitted by:
Community Services
Responsibility:
Community Services

DRAFT COUNTY PLAY POLICY

(circulated herewith)

H-I (11)
Submitted by:
Housing Administration
Responsibility:
Housing Administration

FILLING OF VACANCY ON THE LOCAL TRAVELLER ACCOMMODATION CONSULTATIVE COMMITTEE

(circulated herewith)

Correspondence

Cor (1)
Submitted by:
Community Directorate
Responsibility:

Letter, dated 14th March 2006 from South Tipperary County Council regarding motion passed calling  on the Minister for Enterprise, Trade and Employment to remove capping on Community Employment Schemes.

(circulated herewith)

Cor (2)
Submitted by:
Community Directorate
Responsibility:

Letter, dated 27th March 2006 from Ennis Town Council asking Local Authorities to contact the relevant authorities in the United States requesting support for the undocumented Irish in the US.

(circulated herewith)

Cor (3)
Submitted by:
Community Directorate
Responsibility:

Letter, dated 29th March from Clonakilty Town Council calling on the Minister for the Environment and Local Government to amend planning laws to ensure that planning permission be required for all adult entertainment, retail and dance outlets.

(circulated herewith)

Cor (4)
Submitted by:
Community Directorate
Responsibility:

Letter, dated 30th March 2006 from Fingal County Council regarding motion passed supporting the introduction of a High Hedges Law for control of evergreens in relation to the blocking of light from a person's residential property.

(circulated herewith)

Cor (5)
Submitted by:
Community Directorate
Responsibility:
Letter, dated 30th March 2006 from Edenderry Town Council regarding motion passed looking for Government support for the Stardust Victims.

Motions

Mot (1)
Submitted by:
Councillor T. Ridge
Responsibility:
Martin Judge

Mayor's Business

That this Council re-assess the suitability of granting planning permission for off-licences in built up areas where there are large youth populations and where the original use of premises was not that of an off-licence and if necessary the permitted usage guidelines be changed to effect such change.

Mot (2)
Submitted by:
Councillor J. Hannon
Responsibility:
Paul Fleming
That this Council adopt a "Name & Shame" policy in regard to litter offences.
Mot (3)
Submitted by:
Councillor E. Tuffy
Responsibility:
Muiris O'Keeffe

That South Dublin County Council recognises that the existing national School Transport System operated by the Department of Educational and Science and Bus Eireann was designed in another era for the principal purpose of increasing educational participation at second level, and that the issue to be addressed in school transport in the County in the new century has to do with traffic congestion, safety at school locations and pressure on parents to bring children to school by car, and requests the Manager to undertake an initiative, in consultation with the Government  to provide a Council operated School Transport System in the County. 

Mot (4)
Submitted by:
Councillor J. Lahart
Responsibility:
Denis Ryan, Tony O Grady
That the Council, as a response to damages caused to grass verges, footpaths and outside driveways, as a consequence of private development work, be it residential, commercial or industrial, introduces a bye -law or introduces the provision of a Notification Certificate for residents and businesses, that enables the Council to examine locations prior to the commencement of building/developments, as a means of guarantee that either (a) sites are restored to original order (b) the Council can charge a fee to the occupier or builder or developer , to cover the expense of reinstatement by the local authority.
Mot (5)
Submitted by:
Councillor R. Dowds
Responsibility:
Paul Fleming

That South Dublin County Council (a)  Report on the impact of composters in terms of reducing waste in our County  and (b)  Agrees to set up a pilot scheme in a given area using sophisticated food and vegetation digesters to see the impact that has on dealing with waste.

Mot (6)
Submitted by:
Councillor M. Daly
Responsibility:
Paul Fleming

That this Council set up an information drive for the county to encourage citizens to return their bulk packaging to the point of purchase and encourage REPAK and all commercial businesses to participate in a package reduction scheme which will reduce the amount of waste and reduce the amount of costs to the local environment and business.

Mot (7)
Submitted by:
Councillor M. Murphy
Responsibility:
Paul Fleming

That Council Staff would research in Canada the cost of setting up a Re-Cycling Plant that can Handle Dry Waste from Green Bin Collection capable of separating Paper, Cans, Glass and Plastic. That the Manger would put a plan in place to ring fence enough capital from the sale of lands to build such a plant. The Plant to be in place when the current waste plan runs out in 2010. The Green Bin collection to then be extended to twice a month and for it to be carried out by directly employed Council Workers.

 

Mot (8)
Submitted by:
Councillor S. O'Conchúir
Responsibility:
Frank Nevin
In view of recent job losses, that South Dublin County Council takes the initiative and brings together all interested parties - such as FAS, the unions, employers' organisations, local chambers of commerce, community representatives and government bodies such as the IDA and so on - to ensure that everything possible is done to promote and maintain the attractiveness and suitability of the area for new industries.
Mot (9)
Submitted by:
Councillor T. McDermott
Responsibility:
Muiris O'Keeffe
That South Dublin County Council calls on the Dublin City Manager to restrict access to the city centre (between the Royal Canal and the Grand Canal ), by vehicles of three axles and more between the hours of 7AM and 7PM unless such vehicles are carrying a permit issued by the City Manager. And that such restriction becomes effective when the Dublin Port Tunnel opens - in order that the citizens of South Dublin County enjoy the benefits promised when funding for the Port Tunnel project was approved.
Mot (10)
Submitted by:
Fintan McCarthy
Responsibility:
Muiris O'Keeffe

That this Council takes the appropriate steps to instigate a pilot school bus project as part of its role in traffic management and road safety. Such a scheme would benefit primary and secondary school children as well as all other road users by providing a reasonable alternative to the many families who at present spend a considerable amount of time ferrying children to and from school; thereby contributing in no small part to the traffic congestion that currently plagues our communities.

 

Mot (11)
Submitted by:
Councillor T. Ridge
Responsibility:
John Quinlivan, Mary Hayes
That a detailed report be brought to this Council outlining the actual numbers of staff working directly on anti-social issues.  The report to include staff on part time hours, maternity leave and a breakdown re Clondalkin and Tallaght areas.
Mot (12)
Submitted by:
Sen. C. Keane
Responsibility:
Gary Keogh

That this Council recommends that we make representation to the Colombian Ambassador in London to ensure that the  military rescue operation proposed by President Uribe  to rescue hostages held by FARC be cancelled.  Mindful of the fact that FARC leaders have ordered their men to execute hostages in such a rescue operation, by proceeding in this way, it is imposing a death sentence on the hostages one of whom includes Ingrid Betancourt on whom we have bestowed the Freedom of the County of South Dublin.

Mot (13)
Submitted by:
Councillor D. Keating
Responsibility:
Jim Kilgarriff, Michael Hannon
That the Manager would please provide an up-to-date and detailed report on progress made to build the Council's first Skate Park. Specifically would the Manager please report on the local consultation process which I requested at the outset, with the delegation from the local Skate Board Club regarding the design, lay-out and materials to be used in the Skate Park, and the time scale for the building and completion of this Skate Park.
Mot (14)
Submitted by:
Councillor G. O'Connell
Responsibility:
Muiris O'Keeffe

That this Council write to the appropriate Government Department requesting that consideration be given to (a) activating the "Amber" sequence between "Red" and "Green" on all traffic lights  and (b) inserting a "filter left on Red when safe to do " sign at suitable junctions so as to maximise the capacity of road intersections and alleviate traffic congestion.

Mot (15)
Submitted by:
Councillor J. Lahart
Responsibility:
Martin Judge
That the Council undertakes a review of the regulations governing the siting of planning application roadside public notices, particularly in light of obvious flaws relating to where a planning application may be lodged within an estate that directly affects residents to the rear of that house but located in a different estate.
Mot (16)
Submitted by:
Councillor E. Tuffy
Responsibility:
Mary O'Shaughnessy
That the Council notes with concern that individuals and families who have been approved for apartments and houses under the Council's Affordable Housing Schemes are being required to pay Management Charges of € 800 per annum and more, that the requirement to pay such charges is effectively adding about € 20000 to the cost of their homes, and requests the Manager to have these charges taken into account when arriving at prices to be determined for Affordable Housing units.
Mot (17)
Submitted by:
Councillor S. O'Conchúir
Responsibility:
Neil O'Byrne
That this Council will adopt a policy of using the Irish Language in the naming of all new housing estate developments.
Mot (18)
Submitted by:
Councillor D. Keating
Responsibility:
Gerry Fitzgibbon

That the Manager would report on the initial stages of the Review of the Water Leisure Strategy scheduled for the first quarter of 2006.

Mot (19)
Submitted by:
Sen. C. Keane
Responsibility:
Maria O'Neill

That this Council recommends that we write to the Minister to implement the recommendations of working group to review the management of dog breeding establishments – taking into account the two minority reports. 

Mot (20)
Submitted by:
Councillor T. Ridge
Responsibility:
John McLoughlin
That a report be brought regarding a finish date for the Outer Ring Road and spur to Balgaddy.
Mot (21)
Submitted by:
Councillor T. McDermott
Responsibility:
Martin Judge

That that the Members discuss the process to secure the integrity of the Council's planning files and call on the Manager to improve it in light of recent failures by the Council to fulfil its obligations in this regard. 

Mot (22)
Submitted by:
Councillor G. O'Connell
Responsibility:
Billy Coman

That this Council values the role and contribution of the Community Forum and Community Platform and will positively support them by holding at least one conference per annum dealing with issues of concern to the community and voluntary sector to which the executive from both organisations, as well as the elected members of the Council be invited and by  providing each organisation with a full time support worker and by including both organisations on the relevant invitation list for council events.

Mot (23)
Submitted by:
Councillor R. Dowds
Responsibility:
Paul Fleming

That this council approves the following change to the disposal of 'end of life' vehicles:-

a)  That the €50 charge be scrapped.

b)  That a sum of perhaps €200 be paid to people who bring a car to an 'end of life'  unit.

Mot (24)
Submitted by:
Fintan McCarthy
Responsibility:
Muiris O'Keeffe

That the Manager provides an update on what progress has been made in undertaking an examination of School Traffic Safety measures and to give assurances that the criteria used in prioritising schools will ensure that the most dangerous locations are tackled first.